Treworgans Wheelchair Accessible Holiday Cottage Access Statement

Treworgans Farm Holidays – Accessibility Information

Treworgans Farm Holidays offers two beautifully converted, fully accessible cottages designed for comfort and independence.


Buzzard Watch sleeps up to four guests, with two ensuite bedrooms all on one level.

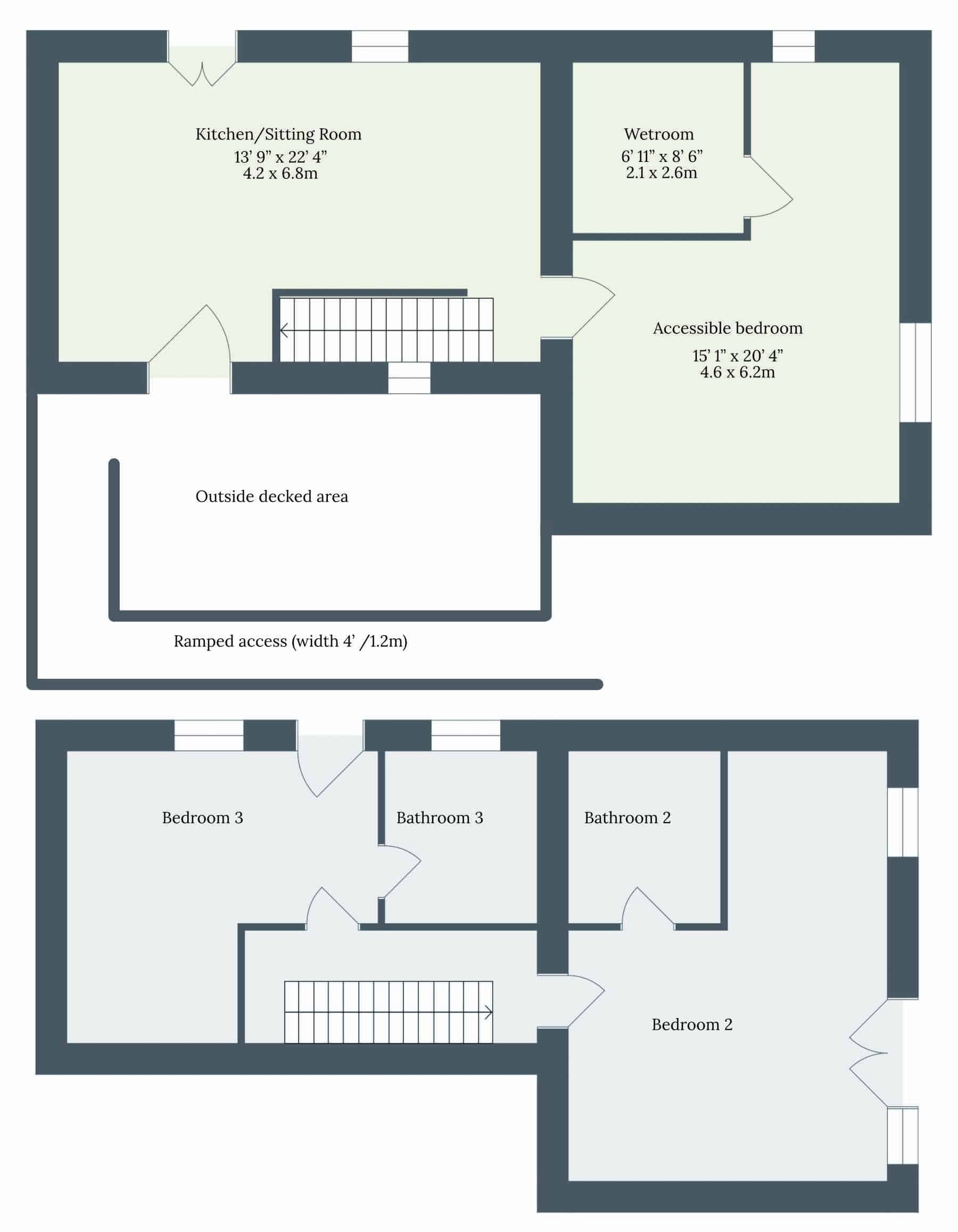
Valley View sleeps up to six and features an accessible floor with an open-plan kitchen and living area, plus a large bedroom with an ensuite wet room. The two remaining bedrooms are reached by stairs.

All accessible rooms have doorways at least 770mm wide (most are over 800mm). Every shower is wet-room style, with no step into the shower area. Kitchens feature accessible sinks and hobs, with 700mm knee clearance beneath. Light switches and sockets are positioned for ease of use at around 1000mm height.

We provide a wide range of mobility and accessibility equipment free of charge, including:

  • Ceiling track hoists and electric mobile hoists (160kg limit, Oxford-compatible — please bring your own sling)

  • Electric four-section profiling beds with optional pressure-relieving or dynamic air mattresses

  • Wheeled and legged shower chairs (self-propelled, attendant-propelled, or reclining

  • Riser-recliner and drop-arm high-back chairs, bed height raisers, toilet seat raisers, and perching stools

More specialist equipment can be hired locally if required.

Bedrooms
Beds are 530mm high with 190mm clearance beneath for mobile hoist access. Rooms can be set up as twin or super-king, or with an electric profiling bed if preferred. Turning circles are 1300mm, and doors offer a 780mm clear opening. Flooring is close-pile carpet for smooth wheelchair movement.

Shower Rooms
Each bathroom is a wet room with non-slip flooring, thermostatically controlled showers, and accessible basins with lever taps. Toilets are fitted with grab rails and drop-down arms. Toilet heights are 460mm in Buzzard Watch and 400mm in Valley View, with optional risers available. Turning circles are 1500mm.

Kitchens
Each kitchen is fully fitted with dishwasher, washer/dryer, fridge/freezer, low oven with pull-down door, and combination microwave. Accessible hobs and sinks provide wheelchair space beneath, and worktops are set at 900mm.

Laundry & Living Areas
Each cottage includes a washer/dryer, drying rack, ironing board, and vacuum cleaner. Wi-Fi is available throughout. Living areas are open and welcoming, with easy circulation and direct level access to private patios.

Outside Areas & Parking
Both cottages have large, level, non-slip patios and gently ramped access from the concrete car parks. Private parking is located beside each cottage for easy unloading.

Directions
Directions to the cottages will be automaticall sent to you prior to arrival.For the final mile, we recommend following our written directions rather than sat-nav, as signage in the area is limited. Treworgans Farm Holidays should be entered into the Sat Nav rather than the postcode

Arrival
We’ll normally greet you on arrival and show you around, but if we’re out, please make yourself at home and we’ll visit shortly after.

Additional Details

  • No smoking or vaping inside buildings

  • Travel cot and high chair available

  • Automatic outdoor lighting to cottages and parking

  • Variable mobile phone reception depending on network

  • Hairdryers provided

Contact Details
Treworgans Farm Holidays
Treworgans Farm, Ladock, Truro, TR2 4QD
Tel: 01726 883240 | Mobile: 07762 173860
Email: info@treworgans.co.uk
Website: www.treworgans.co.uk

For assistance during your stay, please contact David and Esme at the numbers above.
If you need extra care support or specialist equipment not listed, local providers can help — details are available on request.

For emergencies please call 999

Doctors Surgery 01726 882745

Buzzard Watch floorplan (Sleeps up to 4 in two ensuite bedrooms)

Valley View floor plan (Sleeps up to 6 in three ensuite bedrooms)

Check our latest availability, offers and prices

If you would like to book your stay in the heart of Cornwall then please do take a look at our latest availability. If you have any questions about our cottages and if they’re suitable for you, your loved one or relative then feel free to give us a call on 01726 883240 or 07762 173860 and we’ll be happy to answer any questions you have.

Check Availability